导航
X
网站首页
关于鼎煌
典型案例
新闻中心
招贤纳士
联系我们
项目概况
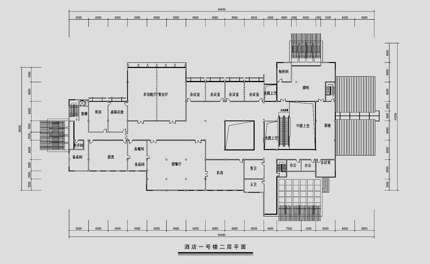
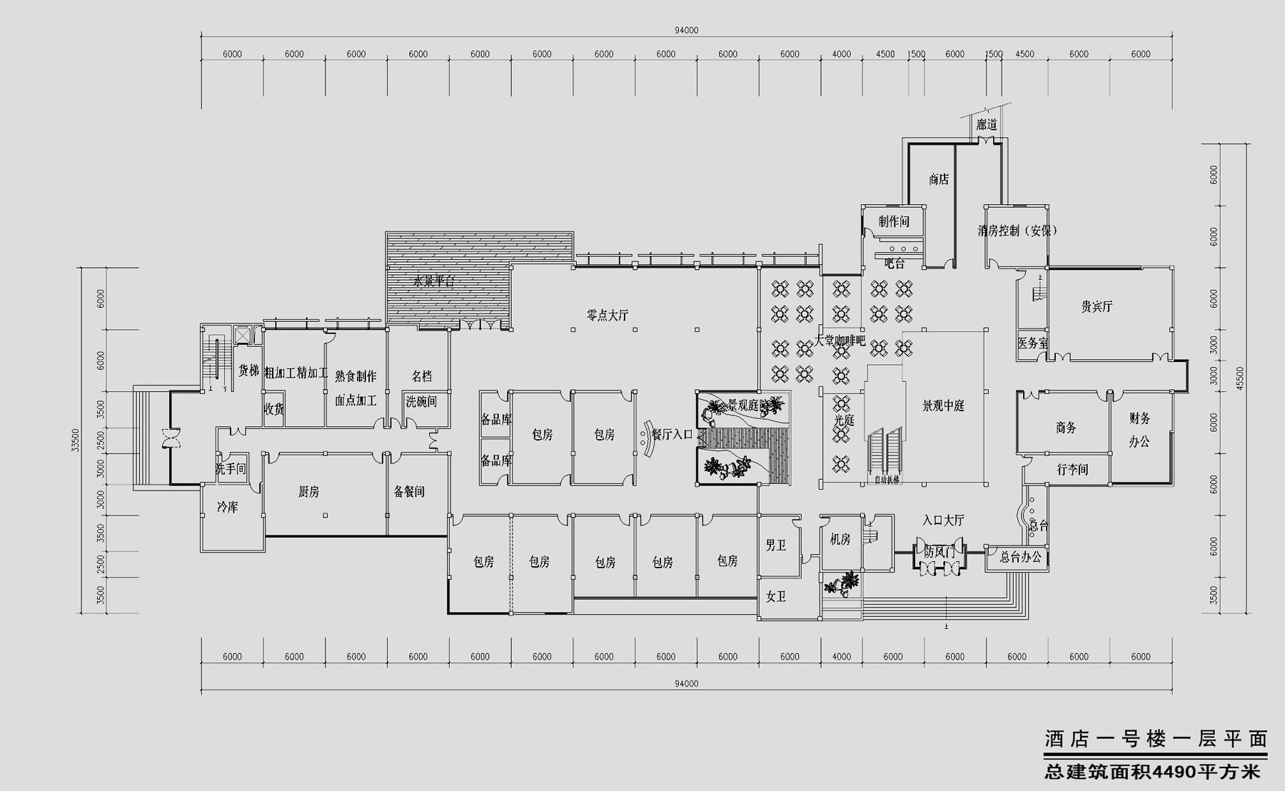
项目名称:溧阳天目湖温泉度假酒店
设计内容:建筑、室内、景观
建筑面积:2.3万平方
建筑风格:新东方风格
建筑业态:别墅式酒店、温泉、SPA
建筑地点:江苏溧阳
竣工时间:2007
此项目已阅览完毕
点击阅览下一项目
此项目已阅览完毕
相关推荐
桃园山庄五星酒店
贵宾楼
荷兰花海景区
飞马水城精品酒店
马文化博物馆
马术表演馆
马儿岛酒店
海澜美术馆
茶马书院
威尔顿酒店
苏南大酒店
人才培训酒店公寓
人才酒店公寓
桃花岛餐厅
飞马铁塔
KTV
马术会员部
溧阳天目湖温泉度假酒店
电商大楼
飞马商城
菱湖渚公园度假酒店
佛手堂足浴
知足馆
风情酒吧
西餐厅
游客中心
威尼斯钢桥
广场牌楼
体育拓展馆
总部大会堂
大桥
网站首页
在线预约
联系我们
网站首页
关于鼎煌
典型案例
新闻中心
招贤纳士
联系我们